Riel de montaje del panel solar SPC-R001
Tipo de producto: Componentes de montaje de paneles solares
Modelo del producto: Rieles de montaje solar-SPC-R001
Material: Aluminio, Anodizado
Carga máxima de viento: 60 m/s
Carga máxima de nieve: 1,4 KN / M 2
Aplicación: Instalación de paneles solares
- Entrega rápida
- Seguro de calidad
- Atención al cliente 24 horas al día, 7 días a la semana
Introducción del producto
Especificación:
Artículo: Modelo de riel de montaje de energía solar fotovoltaica - SPC-R001
Peso (kg/m): 0.7 kg/metro;
Embalaje: 500 piezas/cartón;
1. El riel de montaje SPC-R001 tiene 3 lados para instalar, lado superior para panel solar, parte inferior
y el lado para el gancho para azulejos, la parte superior y el lado son para pernos, el lado inferior es para pernos en T o pernos ordinarios.
2. La inclinación en el perno de la tuerca es fácil para la instalación, la mano de obra, el tiempo y la rentabilidad.
3. El kit de empalme de riel puede ser conveniente para conectar juntos para este modelo de riel de montaje solar: SPC-R001,
es liviano, fácil de transportar, de instalación rápida.
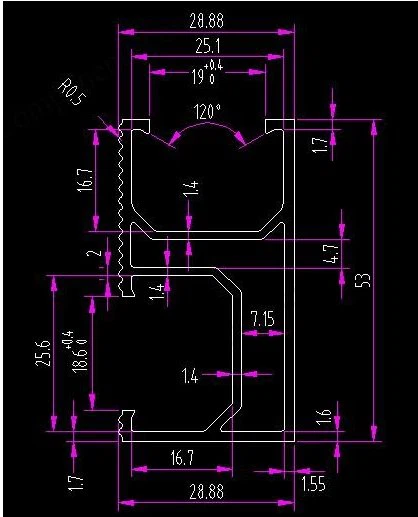
4. Perfil de sección y dibujo del riel de montaje de energía solar fotovoltaica SPC-R001 como se muestra a continuación.

4. Perfil de sección y dibujo del riel de montaje de energía solar fotovoltaica SPC-R001 como se muestra a continuación.
Tamaño estándar de esta serie de rieles de montaje de panel solar SPC-R001:
(1) Modelo de riel: SPC-R001-2560
Longitud estándar de 2560 mm, adecuada para el montaje de módulos fotovoltaicos de 3 unidades de 808 mm- 826 mm de ancho;
(2) Modelo de riel: SPC-R001-3405
Longitud estándar de 3405 mm, adecuada para 4 unidades de montaje de módulos fotovoltaicos de 808 mm- 826 mm de ancho;
(3) Modelo de riel: SPC-R001-4200
Longitud estándar de 4200 mm, adecuada para 4 unidades de módulos fotovoltaicos de 990 mm- 996 mm de ancho montados;
Los rieles de aluminio de longitud personalizada son aceptables para proyectos de instalación solar,
los tamaños pueden ir desde 50 cm hasta 600 cm.
Nuestros rieles de montaje SPC-R001 pueden soportar paneles solares con mayor resistencia cuando se instalan en techos de tejas.
Etiqueta: riel de montaje del panel solar spc-r001, proveedores, fábrica, personalizado, personalizado, comprar
También podría gustarte
-

Sistema de energía solar de tierra de aluminio
-

Sistemas de paneles solares montados en el suelo com...
-

Sistema fotovoltaico de montaje en tierra para estan...
-

Sistema de estructuras de montaje solar de aluminio ...
-

Estantería de paneles solares
-

Instalación rápida Estructura de montaje solar en ti...



